Lot 4

Lot 4

Lot 4

Lot 4

Lot 4

Single-Family Residence

ASPEN, CO

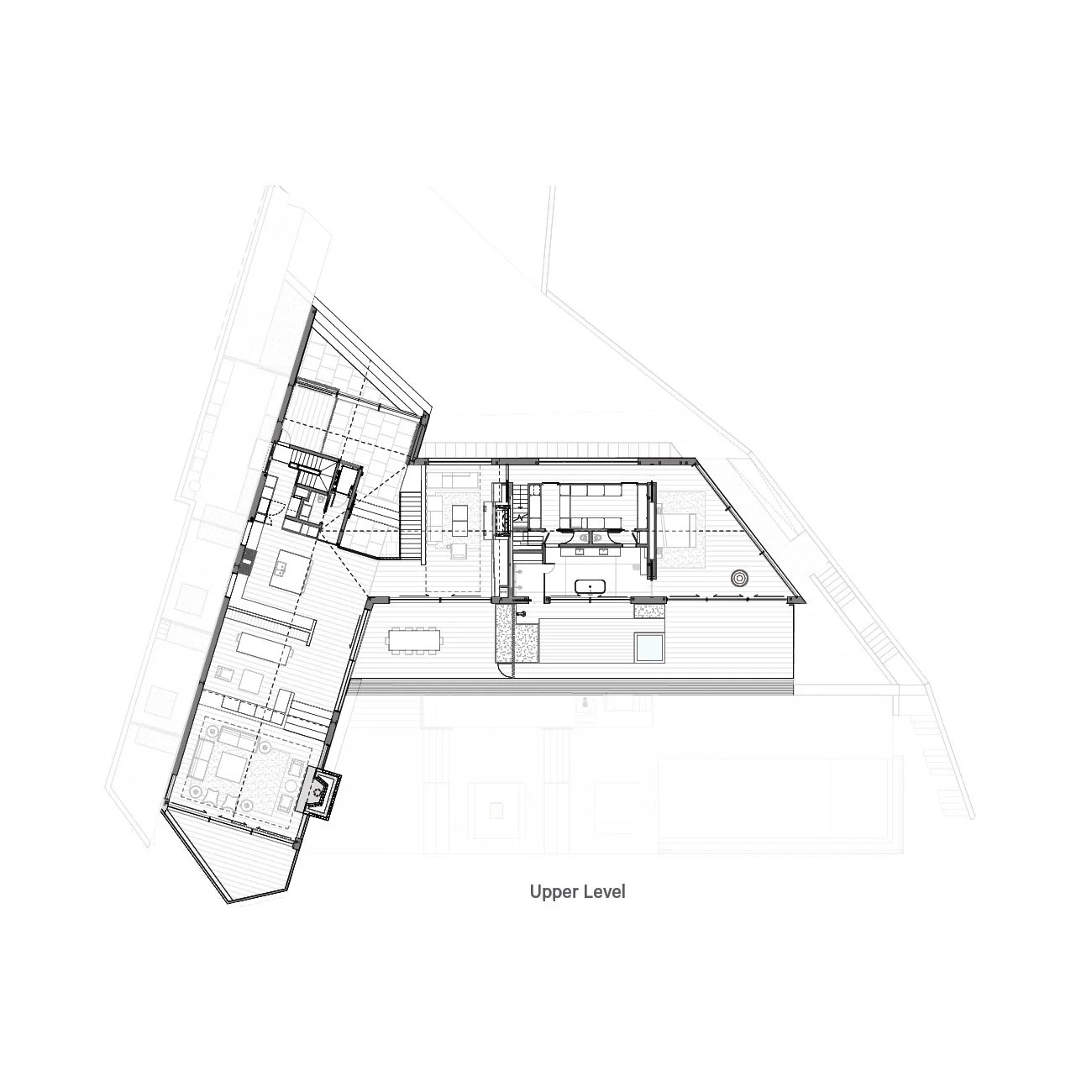
Set into a steep alpine slope in Aspen, Lot 4 is organized as two gabled wings forming an offset chevron, framing views of the Elk Mountains while mediating exposure, privacy, and terrain.

The project draws from the region’s mining vernacular of clustered, pitched volumes, abstracted into a contemporary composition of timber, metal, and stone.

The building envelope is developed to meet demanding climatic conditions, integrating thermal performance, wildfire resilience, and formal clarity. A high-performance wall assembly consolidates structure, insulation, and cladding. Exterior materials include a stone base, vertical wood cladding, and standing seam metal at the gable roofs. Roof edges and drainage are detailed to minimize ember accumulation while maintaining a clean architectural expression.

My role focused on architectural detailing and envelope coordination.

I developed exterior wall assemblies and resolved transitions between cladding systems, including stone-to-wood interfaces and wood-to-metal roof conditions. Particular attention was given to window and door openings to align performance requirements with constructability and visual continuity. An angled building edge required coordination of the shading system within a non-orthogonal gable condition. I also contributed carpentry detailing across interior and exterior conditions.

Work with consultants included integrating lighting into the architectural framework. Linear fixtures were set within the exposed wood beam ceiling, reinforcing a restrained interior expression. Select interior elements, including portions of the primary suite millwork, were developed to align spatial layout with built-in detailing.

Due to client confidentiality, project photography is not included. Select renderings are shown to illustrate design intent..

Previous
Previous

Chelsea Apartment

Next
Next

Universal Belongings